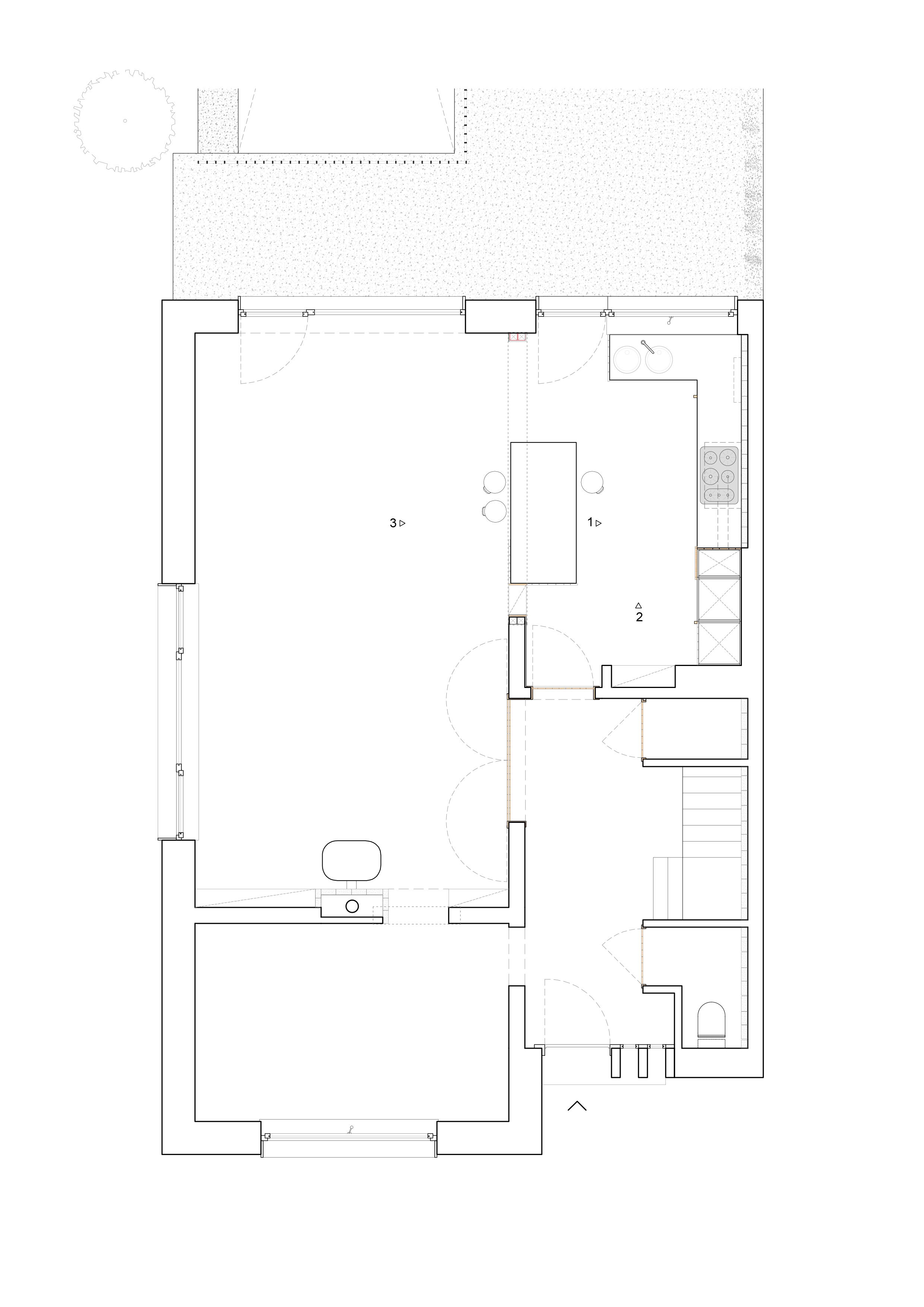
Maison Oliver
Rénovation
Mission complète
Bastogne
2020-2021
Budget travaux :
90 000€ HT

Photographies :
Justine Lajus-Pueyo











 





































  



















Equipes : menuiserie Christophe Ulweling, électricité Olivier Dufour,
plomberie Jean-Léon Pretlot, gros oeuvre Nicolas Costa