Majo
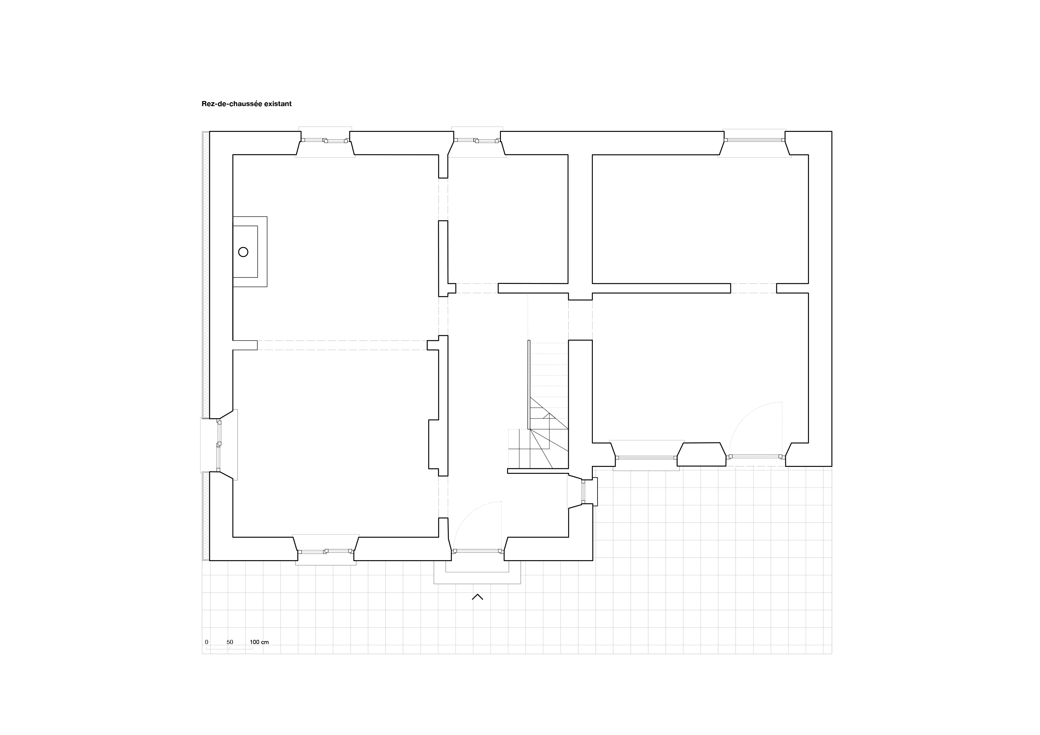
Rénovation
Mission complète GO
mission mobilier
mission partiel second oeuvre
2018-2020

Budget travaux :
240 000€ HT

photographies:
Justine Lajus-Pueyo

 

















   







           








  



        

Equipes :  charpentier Pascal Reyter, ébénisterie Christophe Ulweling,
carrelage François Pirotte, 
menuiserie extérieure Lionel Sac, gros oeuvre Grandjean Bastogne